Phase 1: Concept Design
In June of 2015, Healdsburg City Council allocated $1.527 million in the City's FY15/16 Capital Improvement Program to initiate redevelopment of the site. In addition, City Council provided the following direction:
-The site should provide parking
-The site should be the home of the Healdsburg Farmers Market
-In developing the concept design options, consider space for community events and activities
-Develop two concept design options:
1. Retain the existing building and renovate/repurpose
2. Remove the existing building and reconstruct the site with parking and shade structure(s)
-Identify ways to incorporate green building technology, including solar.
-Return to Council if public process raises ideas that require Council’s consideration.
The City enlisted the services of TLCD Architects out of Santa Rosa, with local representation from architect Alan Cohen, to lead the concept design process to develop the two design options.
Based on feedback during the public input sessions, the City commissioned a third concept design option that removes the existing building and redevelops the site with a parking lot and agrarian themed shade structure. In addition, the City requested cost estimates for an alternative approach that removes the building and constructs parking only with no shade structure or other amenities.
Significant public input on the concept designs occurred between June of 2015 and June of 2016:
In addition, the project had an online or email public feedback option that ran from March 4 through July 16, 2016.
Parks and Recreation Advisory Commission Recommendation, July 27, 2016:
The Parks and Recreation Advisory Commission considered the concept design options at a meeting on July 27, 2016. The Commission recommended to City Council Option #1 without necessarily building out the building at this time but doing the parking lot improvements and infrastructure needed to be able to adapt the building for future uses.
Meeting Packet
Meeting Presentation
Audio
City Council Direction, Monday, August 15, 2016:
After over two hours of public testimony and discussion, a motion by Councilmember McCaffery, seconded by Councilmember Ziedrich, directed staff to develop a schematic design plan that:
Please scroll down for more information on each of the concept design options.
-The site should provide parking
-The site should be the home of the Healdsburg Farmers Market
-In developing the concept design options, consider space for community events and activities
-Develop two concept design options:
1. Retain the existing building and renovate/repurpose
2. Remove the existing building and reconstruct the site with parking and shade structure(s)
-Identify ways to incorporate green building technology, including solar.
-Return to Council if public process raises ideas that require Council’s consideration.
The City enlisted the services of TLCD Architects out of Santa Rosa, with local representation from architect Alan Cohen, to lead the concept design process to develop the two design options.
Based on feedback during the public input sessions, the City commissioned a third concept design option that removes the existing building and redevelops the site with a parking lot and agrarian themed shade structure. In addition, the City requested cost estimates for an alternative approach that removes the building and constructs parking only with no shade structure or other amenities.
Public Input
Significant public input on the concept designs occurred between June of 2015 and June of 2016:
- The City Council received five presentations on the project: 6/15/15, 7/6/15, 10/5/15, 1/19/16, and 5/16/16.
- The City conducted four focus group sessions in February (Farmers Market Board, Friends of the Farmers Market, the Arts Community, and the Downtown Businesses/Chamber of Commerce), and one focus group in April (Farmers Market Board).
- The City held two public open houses: 3/3/16 and 5/4/16.
- The Parks and Recreation Advisory Commission received two reports on the project; 7/18/15 and 5/11/16.
In addition, the project had an online or email public feedback option that ran from March 4 through July 16, 2016.
Recommendations and Direction
Parks and Recreation Advisory Commission Recommendation, July 27, 2016:
The Parks and Recreation Advisory Commission considered the concept design options at a meeting on July 27, 2016. The Commission recommended to City Council Option #1 without necessarily building out the building at this time but doing the parking lot improvements and infrastructure needed to be able to adapt the building for future uses.
Meeting Packet
Meeting Presentation
Audio
City Council Direction, Monday, August 15, 2016:
After over two hours of public testimony and discussion, a motion by Councilmember McCaffery, seconded by Councilmember Ziedrich, directed staff to develop a schematic design plan that:
-
Maximizes parking
-
Preserves the façade and a portion of the building
-
Includes bathrooms and a kitchen
-
Can be implemented in phases
-
Uses and ecologically friendly surface for the parking lot surface
The motion carried on a unanimous roll call vote. (Ayes 5, Noes 0, Absent – None)
The Council expressed appreciation for all of the public input and committed to making the site work as a permanent home for the Farmers Market. As part of this commitment, Council also indicated support for the concept of closing North Street for the Farmers' Market.
Meeting Packet, Audio, and Minutes
Meeting Presentation
Concept Design Options
Please scroll down for more information on each of the concept design options.
Concept Design Option 1: Retain, Renovate, and Repurpose
Option 1 retains the existing building, renovates the structure, and repurposes the building's use to be a combination parking/event space. Primary design components include a new exterior shell, a wrap around patio area, sliding translucent panel barn doors, translucent roof openings for natural light, catering kitchen, restrooms, and storage. Option 1 would provide up to 24 parking spaces inside the building to be used at the discretion of the City, and 33 general parking spaces outside. Option 1 does not include solar on the existing building due to structural limitations, but solar could be added as a stand-alone feature over portions of the exterior parking areas.
Concept Design Option 2: Remove and Reconstruct (Modern Context)
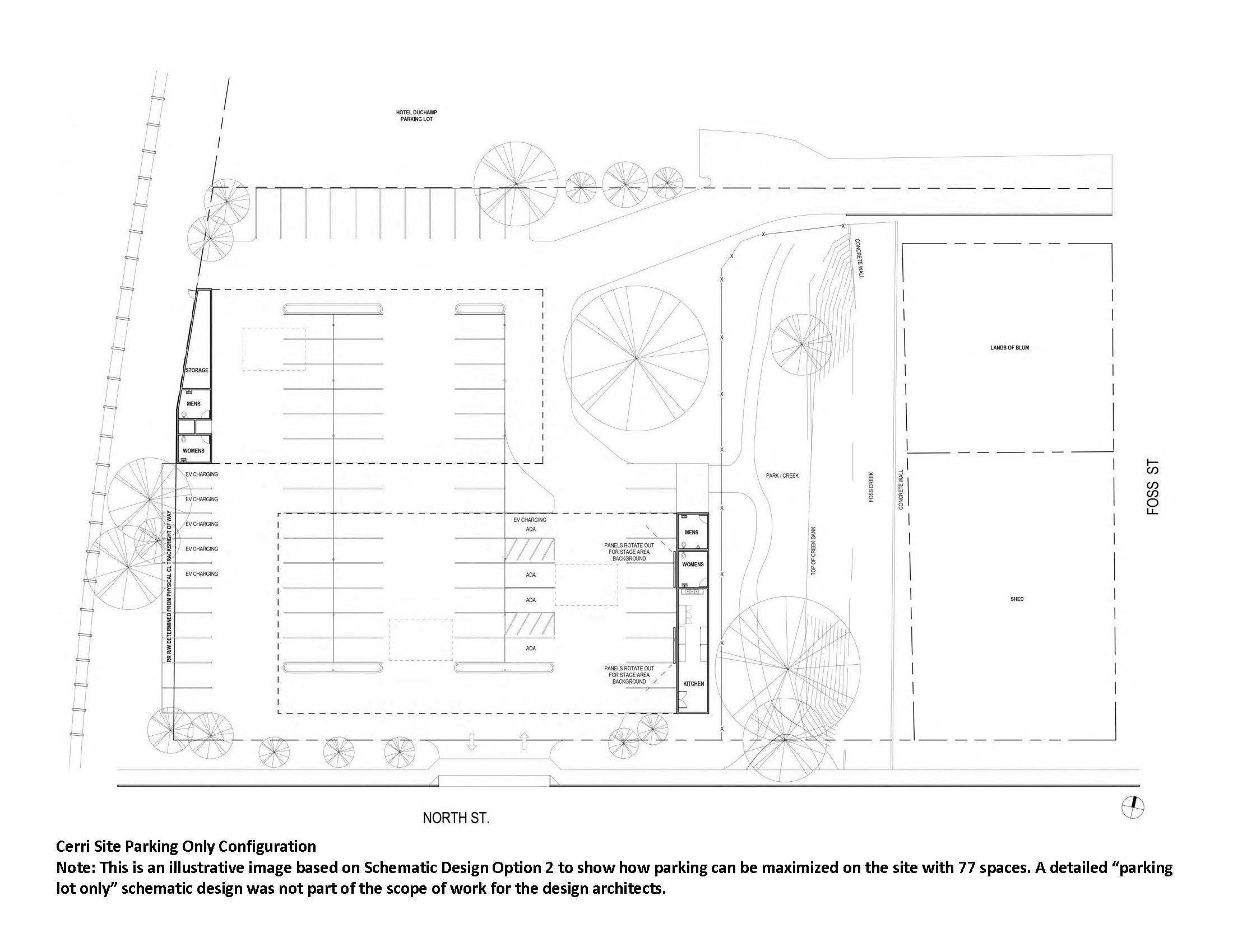
Option 2 removes the existing building, levels the site, and constructs a new parking facility with shade structures to be used as a dual parking and event facility. Primary design components include a new surface parking lot, large overhead shade structures using a modern design, catering kitchen, restrooms, and storage. Option 2 provides up to 77 general parking spaces, and up to 16,600 square feet of solar capacity.
Concept Design Option 3: Remove and Reconstruct (Agrarian Context)
Similar to Option 2, Option 3 removes the existing building, levels the site, and constructs a new parking facility with shade structures to be used as a dual parking and event facility. Primary design components include a new surface parking lot, large overhead shade structures with a more agrarian theme, catering kitchen, restrooms, and storage. Option 3 provides up to 70 general parking spaces, and approximately 4,050 square of solar capacity.